Annonce déposée par APPP le 01/03/14



Détail de l'annonce
Dispo Q2 Mars : 870€ (80€ Charges): Chauffage & Eau chaude collectif + part copropriété. Hors Eau froide et Taxes (pas de Teom).
Immeuble 2013 NEUF norme BBC Dpe Classe A. avec chaudière au bois
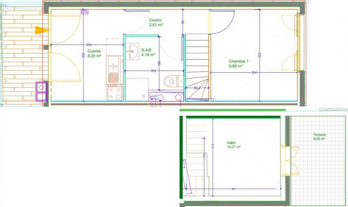
Chambre surélevée au-dessus du Salon sur Jardin avec partie privative + Cuisine + Sdb (Wc + douche à l'italienne) + Cave. Parking possible
Poutres Bois apparents, Carrelage, Équipements aux dernières normes (Vmc DF, coffret communication, etc..)
Petite résidence de 3 étages Très Calme avec jardin et cour, Sécurisée par Vigik & Interphone.
Bus à 100&300m Métro Léo-Lagrange à 7min à pied, Proche de toutes commodités et commerces


: APPP
Prix : 790 €
Ville : 94200 Ivry-sur-Seine
Surface : 36 m²
Pièces : 2
Autres annonces dans la catégorie "Locations"