Annonce déposée par dominique le 04/10/19

Détail de l'annonce
FERME ANCIENNE _ 91720 Buno-Bonneveaux
Superficie total 5240 m2
Maison d'habitation 185 M2 avec dépendances .
Comprenant au rez de chaussée partie habitation
Entrée - 10 m2
Chaufferie - 5 m2
Cuisine - 25 m2
Salon - 32 m2
Salle à manger - 20 m2
Dressing - 8 m2
Salle d'eau - 8 m2
Wc -
Chambre1 - 15 m2
Escalier desservant 1er étage
Dégagement - 13 m2
Chambre 1 - 15 m2
Chambre 2 - 10 m2
Chambre 3 - 8 m2
Cabinet de toilette
avec wc - 3 m2
dressing - 11 m2
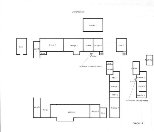
Bâtiment 1
Grange - 96 m2
Garage - 22 m2
Grange - 45 m2
Bâtiment 2
Garage - 33 m2
Atelier - 15 m2
Poulailler - 6 m2
Deux caves en terre battue dont une voutée (accès exterieur)
Bâtiment 3
Ecurie - 60 m2
Grange - 60 m2 grande hauteur
Grange - 100 m2 grande hauteur
Jardin clos - 903 m2
3 citernes d'eau
Chauffage Fuel
Cour fermée
Libre
8 km 91490 Milly la forêt, 10 km 45300 Malesherbes
Prix : 472 000 €

: dominique
Prix : 472 000 €
Ville : 91720 Buno Bonnevaux
Surface : 185 m²
Pièces : 8
Autres annonces dans la catégorie "Ventes"