Annonce déposée par LA GRANGE le 10/11/12


Détail de l'annonce
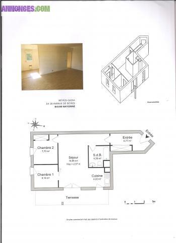
A Bayonne, dans résidence calme, proche tous commerces, bus, grand T2 bis 50 m² avec terrasse sans vis à vis. Parking sous-sol sécurisé. Cave. Piscine.
Sol refait plancher bois.Peinture récente.

: LA GRANGE
Prix : 149 000 €
Ville : 64100 BAYONNE
Surface : 50 m²
Pièces : 3
Autres annonces dans la catégorie "Ventes"