Annonce déposée par Lawoe Amouzou le 15/06/17



Détail de l'annonce
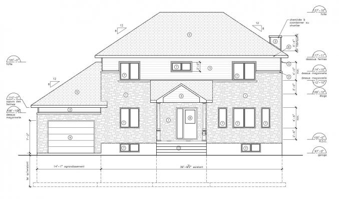
Dessinateur en bâtiment indépendant depuis plus de 10 ans, je vous propose mes services pour la réalisation de dossier de permis de construire ou de déclarations de travaux dans le neuf ou la rénovation:
plans de bâtiments, maisons individuelles, extension/rénovation, pour une surface de plancher inférieur à 170 m² ;
-élaboration de dossiers de déclaration préalable, de permis de construire ;
-réalisation d'insertions paysagères en 3D/ perspective réaliste ;
-descriptif bâtiment
Délai de réalisation sous 2 semaines
Tarif à partir de 500 euros, variable en fonction du projet,du dossier et de sa complexité.
Tous les documents seront remis au nombre d'exemplaires demandés et envoi par email au format PDF.


: Lawoe Amouzou
Prix : 500 €
Ville : 93270 Sevran
Autres annonces dans la catégorie "Autres"