Annonce déposée par lemoine le 15/08/13



Détail de l'annonce
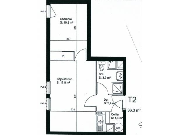
A 2 pas du centre-ville, T2 lumineux année 2006 au sixième étage avec ascenseur et double vitrage. Magnifique vue Loire sans vis à vis. Salon avec coin cuisine équipée et nombreux rangements. Proximité gare sud, centre commercial Beaulieu (parking gratuit), tram 4, Busway et Chrono bus.
L’appartement est situé dans l’immeuble « Arboréa », ce projet immobilier allie bois, verdure et ouverture sur le fleuve. Il a d’ailleurs obtenu une « Pyramide d’Argent » pour son originalité, son esthétique, et son lien avec la Loire.
Accès internet wi-fi, imprimante (format A3 et A4), scanner, serveur de stockage en réseau NAS (Network Attached Storage, pour stocker ses données en toute sécurité), réfrigérateur, cuisine équipée et garage à vélos.
A visiter, nous sommes actuellement deux, Samy (32 ans, consultant informatique) et David (30 ans, architecte d’intérieur et infographiste).
Venez avec votre ordinateur, nous avons tout le reste !
Aucunes charges supplémentaires à prévoir : pas de taxe foncière, pas d'abonnements, pas d'assurance, l’eau et l’électricité sont inclus.
Libre de suite. Bonne ambiance et bonne humeur.
pour plus d'information suivre ce lien : adjup.cla.fr
Cordialement.


: lemoine
Prix : 180 €
Ville : 44200 nante
Surface : 37 m²
Pièces : 2
Autres annonces dans la catégorie "Locations"